This is an area we’re also complete novices. We’ve been very fortunate to have a team that took us on the journey throughout. The team at Torsional led by Najib Sheeka did an excellent job of hand holding us through the process.
There are several elements we considered. The substructure, the superstructure, the drainage and foul water management.
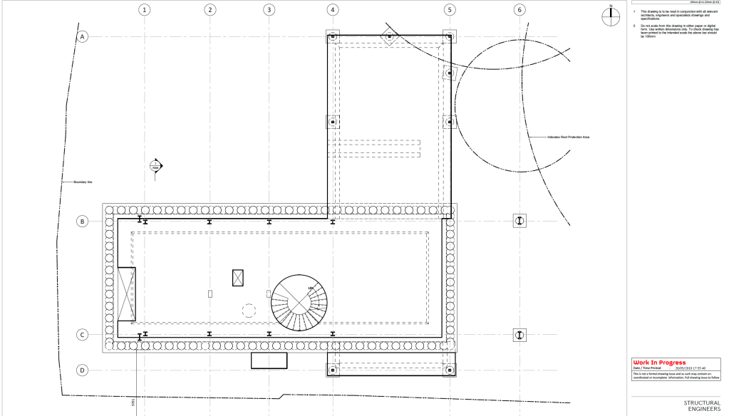
The Substructure
Perhaps the most complex part of our build is the substructure. Dianthus is in a high water table area we also needed to be sensitive to impact on neighbours. Therefore, we had to take a conservative approach so we went with a secant pile basement.
A piled wall has no effect on the neighbour’s property as the piles are formed in discrete holes cored into the chalk compared to a battered back excavation.
Once installed, the piles will be propped to allow the excavation to be completed. This is the stiffest form of construction for the retaining wall and will ensure negligible movement behind the wall. The piling is also an augured piles and therefore the vibration felt will be minimal.
The piles are CFA bored and 450mm in diameter and are 9.0m long and constructed from existing ground level. As at the time of writing, the piling sub-contractor have completed the female piling wall and are working now to complete the male piling walls which are the ones with the steel rods embedded.
I’ve got a video below showing what our subcontractor Burras Limited did. Alright, I’ve skipped Ground works and enabling works. I’ll cover those later including the tender process. I just wanted to cover the main design elements first. This was shot last week.
Piles within the Secant Piles
We first cleared the ground ready for the piling and setup what is described as a piling mat.

They also marked all the locations where the bores will go into. The first one which is called the female pile wall is bored unreinforced. It is 7.0m long and 450mm in diameter. and spaced at 650mm centres. After these piles have been constructed and the concrete set, the hard piles are constructed within the space between the soft piles. so that the hard piles will bite into the soft piles by a maximum of 100mm. The hard piles will be reinforced with a cage of 6H16 bars and appropriate helical binding to cater for the bending moment induced in the piles by the horizontal earth and water pressures.
This doesn’t guarantee or is intended to stem the flow of water as a water tight seal. It’s intended to slow it. I couldn’t believe the amount of water that was embedded in the top soil, the gravel and the chalk that was excavated. Amazing. Hence, we’re going to be implementing a waterproof cladding using a Sika membrane and use a pump once the hard male piles are completed later this week. The idea is to eliminate the need for constant water drainage which may require maintenance and blockage in future.
Here is a link to the Sika video below.
At the moment, that is the theory. We’ll see how we get on in practice.
The piled wall has been propped at the top. To support the piles as the basement soil is excavated later. This prop will be in place until the basement floor has been constructed. The basement wall will also be propped at the bottom permanently.

Superstructure
We considered various options for the build and eventually settled on Structural Insulated Panels. For a few reasons, speed of build, sustainability and airtightness because of the accuracy vs traditional masonry method. I’ve adapted some of the summary below from BuildIt Complete Guide to Self Build booklet that we got recently at Graven Hill the UK’s largest self and custom build community. It was inspiring to see what people have done. We watched the entire Grand Design the Streets series on Channel 4 for lessons learnt.
Structural Insulated Panels (SIPS) Build System
SIPs are Ultrastrong, lightweight, pre-insulated panels that can be used to construct walls, floors and roofs. In our case, we’re using it for all three mixed with external flint cladding and British oak. We’re also using Steel for load bearing where it’s not appropriate to use timber. SIPs are typically supplied in Kit form according to our projects bespoke design requirements. When they’re delivered, they will be slotted together on site by our main contractor Colmar. The elements are also manufactured with openings for windows, doors roof light and we also asked them to cater for a lift in future. If anyone needs it. Who knows the future?
Design
SIP homes tend to be clean-edged and contemporary, but there is no limit on style so you can certainly achieve whatever look you want. In our case, we’re building what looks like a barn structure cantilevered on top of a bunglow. We’ll then clad it with local Hampshire flint. See below example. I have to admit that I’ve become obsessed with Hampshire flint. My daughter is just as obsessed now. Albeit, I’m not keen on the pastiche execution of most of the ones out there. I really like some of the old church buildings such as Salisbury Cathedral and the Woodford Valley villages just outside of Salisbury. The nice thing about flint, is it’s in abundance on most farms locally. A few of the recent builds just went to pick them up from local farms such as Dene Farm. Ok, I digress, the panels strength makes stand out features easy to achieve. A key advantage of SIP is that it’s ideal for creating spacious ready to live in loft rooms which applies to our build particularly as we’re restricted on ridge height as compared to the neighbours property.

Sustainability
Given they are factory manufactured solutions with insulation built-in, SIPs offer an excellent route to getting performance out of the box. This is important for us given we’re trying to comply with the Passivhaus standard as much as possible. IT also reduces the need for excessive thick walls. The panels we’re using will feature a complete layer of insulation. This helps to reduce thermal bridging and the accuracy of the manufacture takes responsibility for achieving the planned airtightness our of the hands of unskilled eyes on site.
The process uses a computer-controlled fabrication process of the timber components and also reduces wastage. The rigid insulation is plastic based but this is true for other structural systems.
Build Speed
This is an area where SIP excels As with timber frame, the entire shell of our house is factory produced and will be slotted together neatly on site. It means we will not have to wait around for wet materials to cure. For example, according to our construction schedule the SIP frames will go up in 13 days this includes the roof frame. If I include the roof covering and the steel to gables another 14 days which means the entire house excluding the cladding is up within a month!

Costs
From a costs perspective, it typically costs more than timber or masonry. However, we’re looking at total lifetime cost of energy use and airtightness. On that basis, SIP wins because of the good level of energy efficiency and carbon impact aspects from a sustainability perspective.
SIP System
We’re planning to use the Kingspan TEK system. Our SIP sub-contractors, Bentley Projects are responsible for the design, and installation of the Kingspan TEK system SIP panels we’re using for our build.
They are high performance structural insulated panels
The Kingspan TEK Building System comprises 142 mm or 172 mm thick structural insulated panels (SIPs) with a high performance fibre-free rigid urethane insulation core, sandwiched between two layers of Oriented Strand Board type 3 (OSB/3).

It is used to construct walls and roofs, and intermediate floors using I-beams or open web joists.
Drainage
I’m not going to cover this in detail at the moment as we’re reviewing certain aspects. Needless to say. If you live in a village expect to deal with foul water and provide a sewage treatment plan as well. There is new regulation coming in next year that also prevents discharge of any foul water into rivers etc in the absence of a mains drainage. Our Engineers and the Landscape architects are updating this at the moment. I’ll update this section in future.
4 thoughts on “Structural Engineering”